One and Three Architectures
The realisation of an archive for the housing of endangered ideas based on three conceptual references in the form of text, visual and spatial. These were analysed and distilled to their core ideas, each reference then represented in text, visual and spatial form, or in some instances a synthesis.
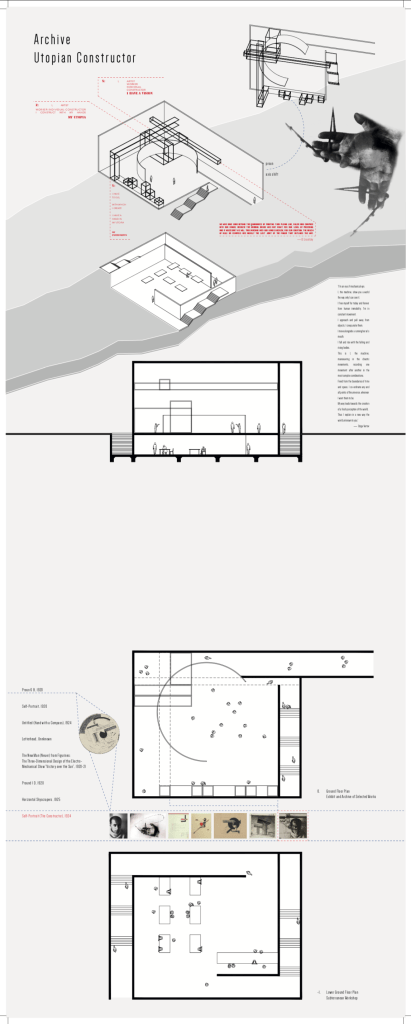
The island is a field of endangered ideas. A field of events, enabling our understanding of a unique array of conceptual artefacts through an archive. The archive distributed across the island, houses a textual, visual, and spatial concept: The Agency of Mapping, James Corner; The Constructor, El Lissitzky; Maison a Bordeaux, Rem Koolhaas.
Each reference and space sets the ground through which the next will be understood. Beginning with text, The Agency of Mapping primes with the notion of layering and sets the scene for The Constructor, and encapsulates the holistic approach to the island. The Constructor, the Russian Constructivist predecessor to Maison a Bordeaux.



